Rio 2016 Bid - Deodoro Cluster
Rio de Janeiro, RJ - Brasil 2008-2009Depois de liderar, em 2005, a equipe multidisciplinar responsável pelo premiado projeto do Complexo Esportivo de Deodoro para os Jogos Pan-americanos, realizados na capital fluminense em 2007, a BCMF (em parceria com Carlos Teixeira) voltou a se envolver com um grande projeto arquitetônico esportivo - desta vez o das Olimpíadas de 2016, no Rio de Janeiro.
Para vencer a concorrência realizada pelo COB (Comitê Olímpico Brasileiro) em 2008, os arquitetos tomaram a decisão de não aceitar novos clientes durante o período e dedicar-se, durante quase um ano, exclusivamente à concepção da arquitetura das Olimpíadas, ao lado de 20 profissionais e parceiros de seu escritório. O Dossiê da candidatura brasileira foi considerado pelo COI (Comitê Olímpico Internacional) como de “mais alta qualidade técnica” entre as quatro cidades concorrentes – Rio, Tóquio, Chicago e Madri. No total, a BCMF entregou mais de 700 arquivos de projeto ao Comitê Organizador, além das perspectivas e plantas finais incorporadas ao Dossiê.
O escritório foi responsável pela concepção dos estudos preliminares (de arquitetura e paisagismo) da maioria das edificações que precisariam ser construídas e ampliadas, trabalhando em conjunto com a equipe Rio2016 e a consultoria internacional EKS/JBD (responsáveis pelos projetos operacionais e overlay), atendendo a tudo o que seria necessário para o perfeito funcionamento das Olimpíadas, a partir dos pré-requisitos determinados pelo COI e de estratégias definidas pelo COB junto com os três níveis de governo (Prefeitura, Estado e União). A BCMF foi responsável pela arquitetura de 17 novas instalações permanentes e pela complementação de 3 instalações existentes, principalmente nas regiões da Barra da Tijuca e Deodoro (onde já haviam feito o projeto do Complexo Esportivo de Deodoro para o Pan 2007). Além disso, o escritório também deu suporte à equipe Rio 2016 no desenvolvimento de algumas instalações temporárias especiais e foi responsável pela maioria das imagens do Dossiê.
As instalações para as Olimpíadas de 2016 foram agrupadas em quatro grandes zonas distintas da cidade: Barra, Copacabana, Maracanã e Deodoro, “clusters” que seriam ligados por um eficiente sistema de transporte viário e de trens de alta performance. Essa estratégia teve como objetivo distribuir os benefícios diretos e indiretos dos jogos entre todos os habitantes do Rio de Janeiro, por meio da construção de instalações e melhorias baseadas em uma rede de infraestrutura já existente.
No cluster da Barra, a BCMF foi responsável pela arquitetura e pelo paisagismo do novo Parque Olímpico do Rio (OLP), o principal projeto da candidatura (que abrigaria 13 modalidades esportivas em quase 1.000.000 m²), incluindo o Centro Olímpico de Natação (OAS), o Centro Olímpico de Hóquei sobre Grama (HTC), o Centro Olímpico de Tênis (TTC), o Velódromo Olímpico do Rio (ROV), a Vila dos Patrocinadores (SPV), o IBC/MPC (Centro Internacional de Transmissão / Mídia Impressa) e o Centro Olímpico de Treinamento (ITC) — uma grande estrutura contendo quatro arenas independentes (Basquete, Taekwondo, Judô, Lutas e Handebol). Ainda na Barra, o escritório foi responsável pela Vila da Mídia (MEV), onde ficaria hospedada a imprensa em 85 prédios, pela “Zona Internacional” – área de convivência e apoio aos atletas da Vila Olímpica (OLV) – e também por um pavilhão temporário especial para o Levantamento de Peso (CRC-6), adjacente aos pavilhões existentes do complexo do Riocentro.
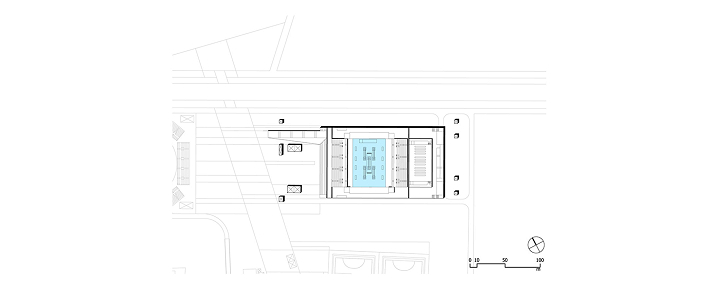
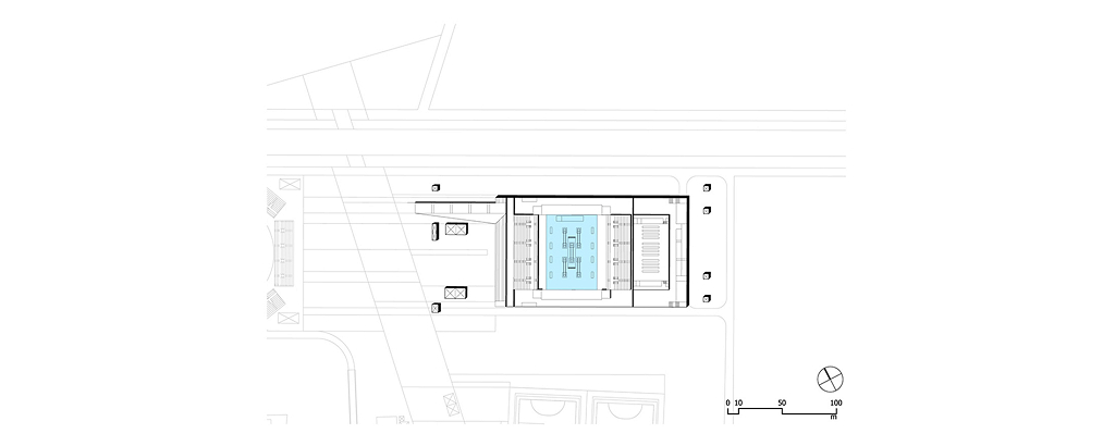
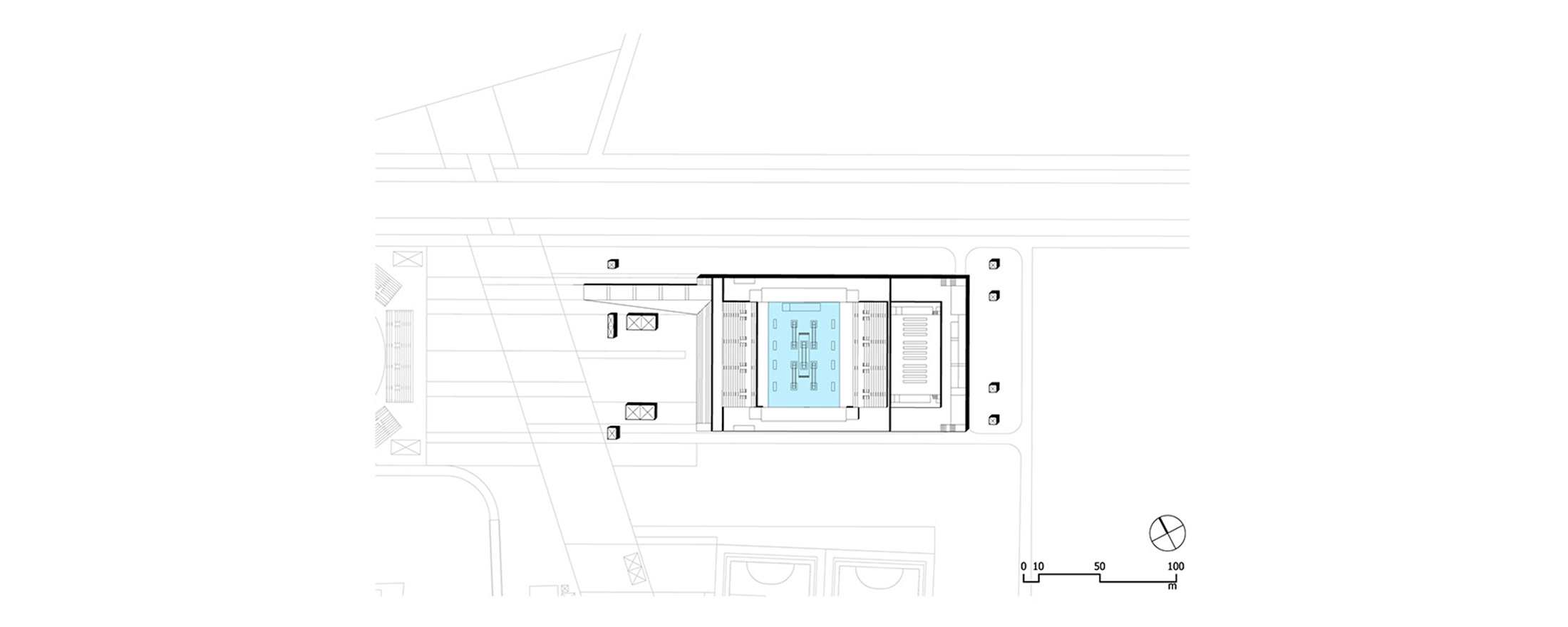
No cluster de Deodoro, a BCMF foi responsável pelo X-Parque (XPR), um “parque de esportes radicais” que seria uma nova atração da cidade, incluindo o Centro Olímpico de Ciclismo (BMX), o Centro Olímpico de Mountain Bike (MBK) e o Centro Olímpico de Canoagem/Caiaque Slalom (CAN) — o Estádio Olímpico de Whitewater. O Centro Nacional de Tiro Esportivo (NSC), o Centro Nacional de Hipismo (NEC) e o Centro Nacional de Pentatlo Moderno (MNP) – todas instalações já projetadas pelo escritório para o PAN 2007 segundo padrões olímpicos – precisaram apenas de pequenos ajustes e complementos, incluindo um novo Ginásio para Esgrima, a Arena de Deodoro (MNP) e algumas estruturas temporárias.
Cliente: Comitê de Candidatura RIO 2016
Projeto: Rio 2016 Bid
Estudos Conceituais Candidatura Rio 2016
Ano: 2008-2009
Localização: Rio de Janeiro, Rj
Arquitetura e Paisagismo: BCMF Arquitetos: Bruno Campos, Marcelo Fontes e Sílvio Todeschi (Arquitetura), com Carlos Teixeira (Paisagismo)
Equipe: Patrícia Bueno, Leonardo Rodrigues, Mateus Hermeto, Carolina Eboli e Sean Mc Neary
Créditos: Rio 2016 / BCMF Arquitetos
Gerenciamento e Coordenação Geral: Comitê de Candidatura RIO 2016 / Alexandre Techima (Diretor de Infra-estrutura), Elly Resende (Gerente Geral), Ângela Ferreira (Gerente de Planejamento Arquitetônico) e Rodrigo Garcia (Gerente de Planejamento Operacional) Consultor Internacional EKS/John Baker
Masterplans Operacionais e Projetos de Instalações Temporárias: (Overlay) EKS/ John Baker e Equipe Rio 2016 (Ângela Ferreira, Ana Paula Loreto, Bárbara Fernandes, Flavia São Thiago, Izabela Hasek, Miguel Ciavarella e Patrícia Dias)
Produção Gráfica: (Coordenação BCMF)
Renderização: Casa Digital (Felipe Coutinho e equipe)
Arte Final: Matiz (Fernando Coutinho e equipe)
Modelos 3D: (Sketch-up) Equipe B – Fernando Pacheco do Nascimento e Leandro do Santos Magalhães e equipe (Fernanda Albert Saliba, Francielle Evelyn Mendes Gomes e Luisa Soares da Cunha Guimarães)
Infografia: (Coordenação Rio2016) André Maya Monteiro, Luiza Kramer e Daniel Bokelman
Maquetes: Adhemir Fogassa Maquetes
Status: Construído