Janelas CCBB
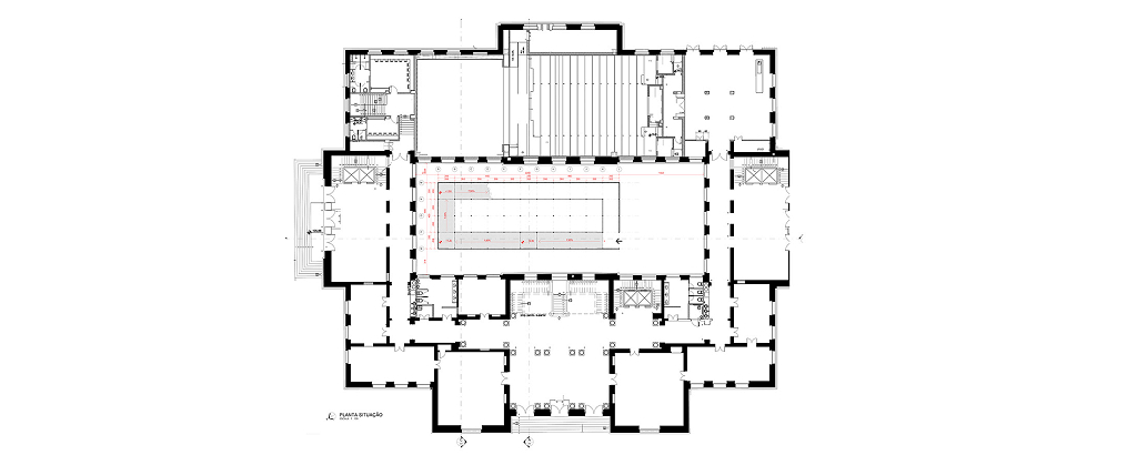
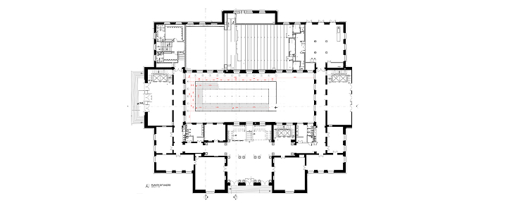
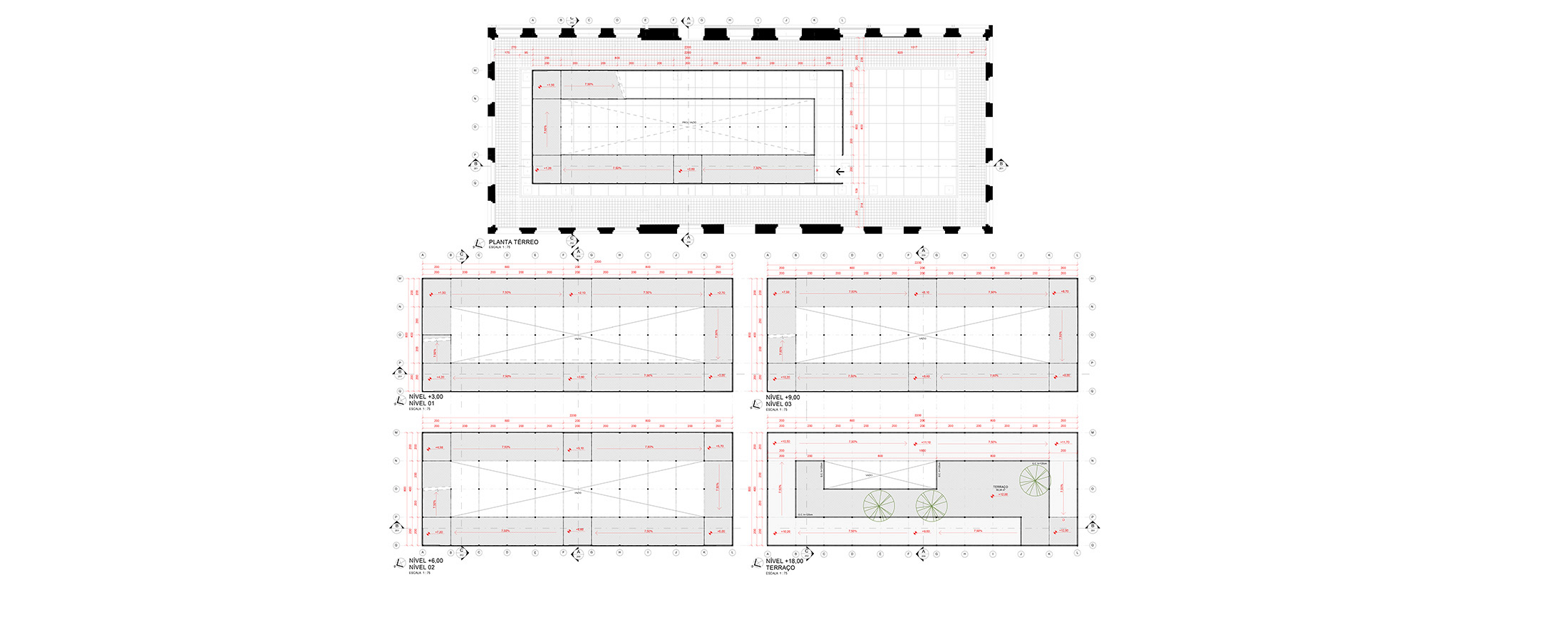
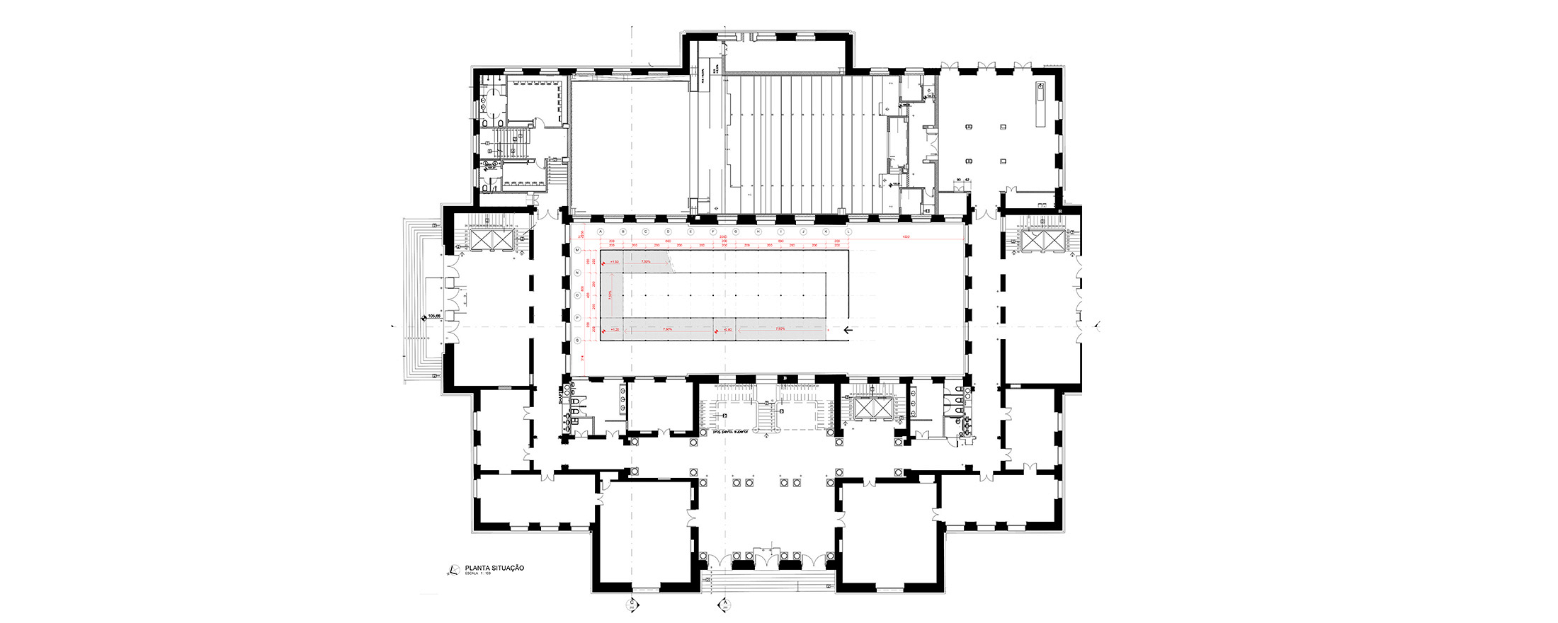
Belo Horizonte, MG - Brasil 2020O projeto se fundamenta nas propostas radicais de arquitetura de vanguarda das décadas de 1950 e 1960 — notadamente as visões de Yona Friedman, Cedric Price e Buckminster Fuller — que idealizavam soluções de velocidade, leveza e flexibilidade como resposta aos desafios urbanos e sociais. Em um cenário global cada vez mais volátil, esses conceitos se mostram cruciais para a arquitetura contemporânea. Neste contexto, propomos a inserção de um pavilhão no vazio central do edifício histórico do CCBB. A estrutura atua como um dispositivo espacial dinâmico, concebido para gerar experiências inesperadas e visadas surpreendentes do pátio interno. O ponto culminante da ascensão é uma praça suspensa que se abre totalmente, integrando a cobertura zenital e, metaforicamente, trazendo o céu para dentro do coração do CCBB.
Pensadores de vanguarda nas décadas de 1950 e 1960 na Europa e nos Estados Unidos como Cedric Price, Buckminster Fuller, Peter Cook e, particularmente, Yona Friedman propuseram modelos radicalmente flexíveis e móveis de arquitetura e urbanismo para solucionar alguns dos problemas mais urgentes e visíveis do mundo imediatamente pós-guerra.
Eles idealizaram uma solução arquitetônica de velocidade, leveza e flexibilidade para resolver nossos problemas urbanos mais desafiadores, estabelecendo uma emolduração tridimensional do espaço sobre uma determinada zona (cidade, fazenda, estrada), fornecendo um espaço infinitamente flexível para os habitantes.
Atualmente, em um mundo cada vez mais volátil e em constante expansão, um sistema de velocidade, flexibilidade e estrutura leve pode ser cada vez mais necessário para atender aos mais complexos problemas sociais, econômicos, ambientais e sanitários.
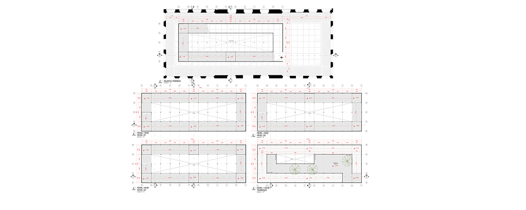
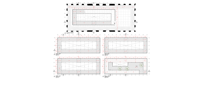
Esse pavilhão (um prisma de 7m de largura, 20m de comprimento e 18m de altura) pretende criar uma experiência espacial dinâmica no vazio do edifício histórico, possibilitando usos incomuns e visadas surpreendentes do pátio interno do CCBB. Ao ascender até uma praça suspensa próxima à cobertura zenital, o pavilhão se abre totalmente ao ar livre, trazendo o céu para dentro do pátio.
Projeto: Janelas CCBB
Localização: Belo Horizonte, MG
Ano: 2020
Arquitetura: BCMF Arquitetos
Autores: Bruno Campos, Marcelo Fontes e Silvio Todeschi
Equipe: Octavio Pena
Interiores: Pedro Haruf
Status: Projeto