Bem-vindo.

H3O Parque

Parque da Terceira Água [H3O] O conjunto de vilas e favelas da Serra – Aglomerado da Serra – é um dos mais amplos da Região Metropolitana de Belo Horizonte e está situado na encosta da Serra do Curral. Ocupa uma área de 1.495.579 m2 e é, segundo a Prefeitura, formado por seis vilas: Marçola (também conhecida como favela Cabeça de Porco), Nossa Senhora de Fátima, Nossa Senhora Aparecida (conhecida como favela do Pau-Comeu), Nossa Senhora da Conceição, Cafezal e Novo São Lucas. A população local, a imprensa e alguns estudos sobre o Aglomerado identificam 11 vilas como componentes desse espaço, entre elas a vila Fazendinha e a vila Antena. Essas são denominações não-oficiais, criadas pela população local para se diferenciarem de espaços marginalizados pela cidade como a favela do Cafezal ou a Pau-Comeu, conhecidas como lugares de muita violência e criminalidade. O aglomerado abriga cerca de 50.000 habitantes alojados em 15.000 moradias.

O Parque da Terceira Água (ou “H3O”) é parte de uma grande obra em todo o Aglomerado, sendo considerada a maior intervenção em favela já feita no Brasil. As intervenções incluem, além da implantação do Parque, obras de urbanização de becos, construção de moradias, erradicação de áreas de risco, recuperação de nascentes, rede esgoto a todos os domicílios e implantação de rede de interceptores ao longo dos córregos e no entorno do Parque, evitando a poluição de cursos d’água. Batizado como Vila Viva, o projeto contou com recursos de R$171,5 milhões de reais. O programa foi criado com participação intensa da população através do “Orçamento Participativo”. Um dos seus pontos principais é a realocação de famílias que vivem em áreas de risco para as novas moradias do projeto, que se encontram na mesma região, ao invés de removê-las para novos assentamentos em locais distantes do centro da cidade, conforme ocorreu em projetos anteriores. 

O projeto do Parque H3O inclui a despoluição dos leitos d’água, a preservação das espécies nativas do parque, além de contar com áreas de lazer, equipamentos de ginástica (Praça da Academia), pistas de caminhada, x-park (parque de esportes radicais) e o Centro Comunitário – BH Cidadania. 

A Praça da Academia é a praça onde estão concentrados os equipamentos de ginástica do Parque da Terceira Água. O principal elemento é um muro que condensa argolas, arcos para abdominais, muro para escalada, traves para alongamento, grades para crianças etc. No nível mais baixo da praça estão equipamentos para cavalo (esporte olímpico), pranchas para abdominais e barras para ginastas.

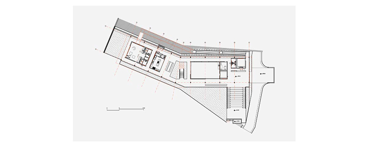
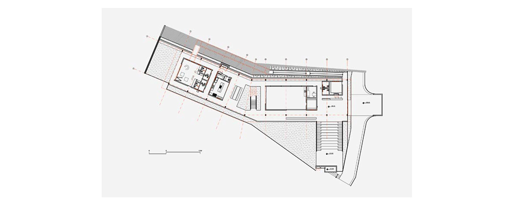
O Centro Comunitário abriga cursos profissionalizantes, programas de educação ambiental, cozinha coletiva, academia de ginástica, creche, sala de brinquedos, centro de inclusão digital além de oficinas de marcenaria e tipografia.

Devido ao baixo orçamento, o conceito da edificação é simples: blocos de atividades separados por circulações e pátios internos, cobertos por um invólucro de telha metálica perfurada.  

Dois sistemas diferentes foram usados na construção: estrutura metálica pré-fabricada para a cobertura e o sistema de alvenaria convencional para vedações. Primeiramente, foi construída a cobertura proporcionando abrigo para os trabalhadores durante o restante da construção. Esse telhado independente além de proteger a edificação da insolação direta e da chuva, cria um espaço aberto totalmente integrado com a área externa. O prédio mantém-se aberto, acessível, convidativo ao usuário. A cobertura de metal possui diversas aberturas que enquadram parte da paisagem do bairro e claraboias, garantindo luz e ventilação por toda a edificação.  

H3O Parque Projeto Arquitetônico Executivo

Projeto: H3O
Localização: Aglomerado da Serra, Belo Horizonte, MG, Brasil
Ano: 2009
Área Terreno:  45.000m²   
Área:  1.200m²   
Autores: Silvio Todeschi, Carlos Teixeira, Flávio Agostini, Ana Assis, Alexandre Campos
Fotografia: Leonardo Finotti
Status: Construído

Esse site usa cookies para fornecer a funcionalidade necessária do site, melhorar sua experiência e analisar nosso tráfego.

Saiba mais