Espaço Mobília
Nova Lima, MG, Brasil 2024O projeto da BCMF Arquitetos para a Casa Cor MG nesse ano se chama “Espaço Mobília”. Trata-se basicamente de um espaço corporativo, que permanecerá funcionando depois do evento como a área administrativa do próprio Espaço 356 compartilhada com Multicult, empresa franqueada pela Casa Cor em MG.
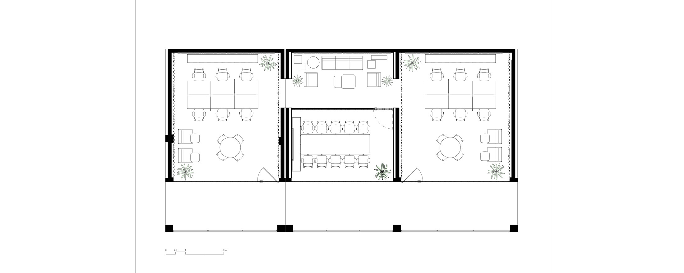
O espaço com cerca de 90m2 é resultante da junção de 3 módulos de lojas do Mall do Espaço 356 (com cerca de 6x5m cada) e cada um abriga uma função. Os dois módulos laterais têm layouts idênticos espelhados, e são dedicados ao espaço de trabalho de cada empresa, incluindo mesas de trabalho colaborativo, individuais, área de espera / descompressão e bancada de apoio para café. O módulo central abriga uma sala de reunião que será compartilhado pelas duas empresas, incluindo uma sala de espera (lounge).
Em termos de ambientação, optamos por uma paleta de cor em tons de verde e cinza, mais fechada, para fazer uma conexão direta com o paisagismo do jardim exuberante ao longo da circulação do Mall. O verde também é um tom extremamente positivo, que remete ao equilíbrio e restauração, à saúde, segurança e calma.
Em termos de materialidade, revestimentos e mobiliário, usamos e abusamos de todo o espectro e repertório da “Mobília”, que há mais de 40 anos trabalha para transformar os espaços de trabalho proporcionando bem-estar, ergonomia, design e qualidade, fornecendo mesas, cadeiras, sofás, poltronas, carpete, forro acústico, divisórias, cortinas etc.
Um ponto a destacar no projeto é o tratamento acústico, que tem se tornado um componente vital no design dos espaços corporativos modernos. À medida que os ambientes de trabalho evoluem para se tornarem mais colaborativos e dinâmicos, a gestão eficaz do som dentro destes espaços é essencial para promover a produtividade, o bem-estar e a satisfação dos colaboradores.
O forro de baffle de Ecoshape (Lady) é composto por placas acústicas (70% de pet reciclado) de 120x20cm de cores variadas alternadas, espaçadas a cada 15cm para dar espaço às luminárias lineares e aos bicos de sprinkler, criando uma espécie de paisagem no teto que se desdobra nos fundos em um painel acústico também de Ecoshape, com um grafismo recortado a laser, que tem seu padrão negativo repetido de forma positiva no adesivo do vidro que faz o fechamento dos módulos com o mall, criando uma certa privacidade com um grau de transparência. Nas paredes laterais, as mesmas cortinas funcionam como divisórias que separam os dois espaços de trabalho da sala de reunião, que é fechada com um sistema de divisória de vidro com persiana embutida. As quatro grandes cortinas arrematam o volume interno dos três módulos, criando uma atmosfera acolhedora mais própria de um ambiente de estar do que um ambiente de trabalho.
Dessa forma, temos no “Espaço Mobília” uma combinação de flexibilidade, tecnologia, bem-estar e sustentabilidade, integrados com a arquitetura e paisagismo do Espaço 356. Nossa ambição é criar um ambiente de trabalho que seja exemplar, mais dinâmico, eficiente e agradável, que não só melhore a produtividade, mas também promova o bem-estar geral dos colaboradores que usarão esse espaço após a mostra da Casa Cor 2024.
Projeto: Espaço Mobília
Localização: Espaço 356, Belo Horizonte
Ano: 2024
Arquitetura: BCMF Arquitetos
Autores: Bruno Campos, Marcelo Fontes e Silvio Todeschi
Equipe: Lucas Moreira, Ana Mansur, Thais Cedrolla
Imagens: Jomar Bragança
Mobiliário e Revestimentos: Mobília BH (Flexform, Operis, Neoffice, Abatex e Lady)
Iluminação: Iluminar
Projeto de Ar Condicionado: Ecotemp
Áudio e Vídeo: Tecai
Esquadrias: Infinito
Adesivos: Conceito Digital
Paisagismo: Wanderlan Pitangui
Material Elétrico: Loja Elétrica
Pintura: Tintas Coral